The Insider: Central Light Well Organizes Space in Greenpoint Row House Gut
Hatchet Design Build rethought a circa 1890s wood-frame two-family with no original detail left for new owners.
Photo by Matthew Williams
Got a project to propose for The Insider? Contact Cara at caramia447 [at] gmail [dot] com
A renovation can be little more than tweaks, or it can be drastic. The latter was the case in a formerly cramped and dreary three-story wood frame row house built circa 1890s that had already been stripped of original detail.
“It was a warren of very heavily lived-in rooms,” said architect Matt Ransom, who spearheaded a total rethink and reorganization of the two-family building into a single-family for new homeowners. “There wasn’t much for us to make use of except the original footprint.”
The first step of the project, carried out by Manhattan-based Hatchet Design Build with Ransom as lead architect, was a gut of the entire interior — “even beyond the studs,” as he put it. “The clients had been looking for a house that was a blank slate, not beholden to historic fabric, where they could make their mark.”
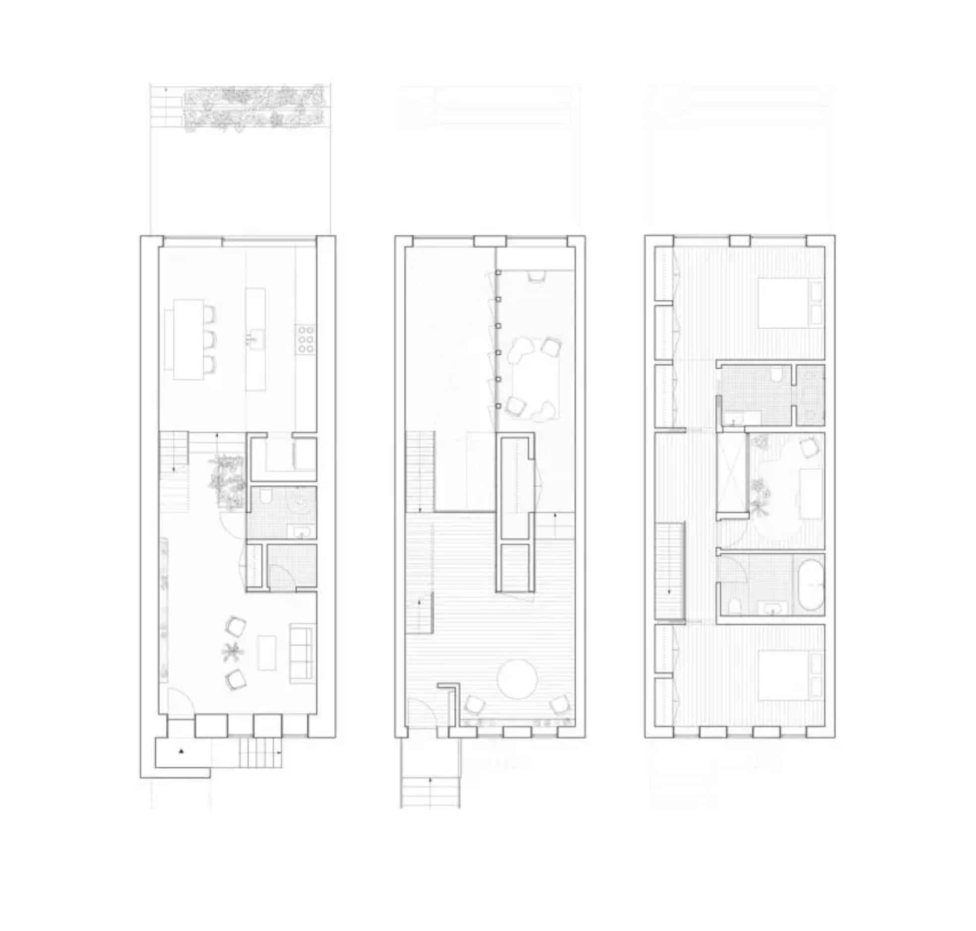
The resulting overhaul features a couple of major architectural moves. “We dug the cellar out,” Ransom said, “and cut a big hole in the parlor floor to create a mezzanine overlooking the cellar space,” now a spacious kitchen opening directly into the backyard (top photo). The long mezzanine, which houses work-from-home space and a piano, among other things, was outfitted with sliding shutters of birch plywood to be opened and closed as desired.
A new 3-by-10-foot skylight illuminates the entire building and provides a visual throughline from the top floor, where there are three bedrooms, to the kitchen two levels below. The living room sits on the floor in between, at the front of the house. A switchback stair with open risers ties together the levels without reducing transparency. “There’s a visual connection townhouses often lack,” Ransom said. “Part of the goal was allowing the occupants to find privacy, but not be cloistered.”

The front facade retained its peaked circa 1930s parapet and original three-windows-across pattern, remaining contextual with other houses in the neighborhood.
The siding on both front and rear facades is cedar, sealed and weatherized in a Japanese wood-charring process called shou sugi ban. The resulting crackled texture “is not dissimilar to shake shingles,” Ransom said, and it renders the material very long lasting. It was sourced from Nakamoto Forestry in Portland, Oregon.




The living room is the first room encountered upon entry to the house. Studio Oink of Leipzig, Germany, led the way on furnishings. “They have a particular sensibility, with a little bit of levity, closely aligned with the owners’ tastes,” Ransom said.



“We went big with windows for maximal light, but didn’t want to completely blow out the back,” the architect said. “The idea was that the kitchen should sort of float out into the excavated backyard,” whose planters and foundation walls provide a sense of enclosure near the house.
The kitchen design — a collaboration with Studio Oink — was “super simple,” Ransom said, with birch ply cabinetry; ceramic tile countertops from Nutina, a Spanish company; and an abundance of storage. A custom neon light fixture hangs over the island.
Walls of tadelakt plaster and a polished concrete floor amplify incoming light.

A stall shower of reeded glass and a rectilinear stone basin characterize the lower level bath.

A metal rod between stair risers is “a simple way of dealing with building code,” Ransom said. “The stairs let as much light as possible pass into the space.” The treads are Douglas fir, like the flooring on the house’s upper levels.
The front part of the cellar level (behind the drapes) contains utility and storage space.

The insertion of a central light well was fundamental to brightening the building’s interior.

One end of the mezzanine is used as home office space.




Upstairs are three bedrooms — one at the front of the building, one in the rear, and a flexible space in the middle of the floor, with an interior window, currently used as a nursery.


There are two full baths on the top floor — a primary bath with a lozenge-shaped vessel sink and metal mesh cabinet, and a children’s bath with two separate alcoves.

[Photos by Matthew Williams, unless noted]
The Insider is Brownstoner’s weekly in-depth look at a notable interior design/renovation project, by design journalist Cara Greenberg. Find it here every Thursday morning.
Related Stories
- Williamsburg Townhouse Gut Restores Architectural Integrity, Brings in Light
- The Insider: Design-Build Firm Brings Light, Modern Look to a Six-Story Prospect Heights Brownstone
- The Insider: Lofted Row House Co-op in Brooklyn Heights Gains an Overall Refresh
Email tips@brownstoner.com with further comments, questions or tips. Follow Brownstoner on Twitter and Instagram, and like us on Facebook.
i hope the new owners enjoy many happy years here. i fear the beige palace could be challenging to market.